Lompat ke konten Lompat ke sidebar Lompat ke footer

Équipement Pmr Salle De Bain / Accessibilite Pmr Pour Salle De Bains Les Normes A Respecter - Normes salle de bain pmr :

Équipement Pmr Salle De Bain / Accessibilite Pmr Pour Salle De Bains Les Normes A Respecter - Normes salle de bain pmr :. Des équipements adaptés pour votre salle de bain complète. Vous pourrez équiper vos toilettes pmr d'une barre d'appui permettant un accès plus simple aux personnes en fauteuil roulant. Cela vaut autant chez les particuliers, que dans les lieux recevant du public (erp) à l'instar des collectivités. Notre guide vous permet de choisir l. Il est donc bien étudié et ne peut être fait au hasard.

Les accessoires pour une salle de bain pmr adaptée aux séniors ou personne handicapée. Nous proposons la vente et l'installation d'équipements pmr des marques. Pellet asc est un fabricant français spécialisé dans les équipements pmr pour la. Cela vaut autant chez les particuliers, que dans les lieux recevant du public (erp) à l'instar des collectivités. Régler la hauteur des équipements de salle de bains pour les pmr découvrez comment régler la hauteur d'une baignoire, d'une douche, d'un lavabo ou la hauteur des équipements et boitiers électroniques dans une salle de bains dédiée aux pmr.

Amenagement Des Salles De Bains Pour Personnes Agees Aube Et Troyes
Amenagement Des Salles De Bains Pour Personnes Agees Aube Et Troyes from eaubetech.fr
Poser un lavabo pour pmr Équiper une salle de bains ou des toilettes pour une personne à mobilité réduite (pmr) implique de choisir des équipements de qualité offrant une grande sécurité pour l'utilisateur. Barres de maintien, sièges de douche, miroirs inclinables, robinetterie, vasques. Le prix des équipements pour salle de bain pmr peut atteindre les 10 000 € selon les installations à faire. Pour des raisons de confort et de sécurité, une personne handicapée ou à mobilité réduite nécessite des aménagements spécifiques dans la salle de bain. Afin d'aménager votre salle de bain équipée innov&eau selon vos goûts, nous vous suggérons une large gamme de produits. Des équipements adaptés pour votre salle de bain complète. Découvrez les travaux réalisés par sweetdom pour rénover la salle de bains d'un couple senior selon les recommandations d'un ergothérapeute.

La loi prévoit l'obligation d'aménager vos espaces salles de bains de manière à les rendre accessibles aux personnes handicapées.

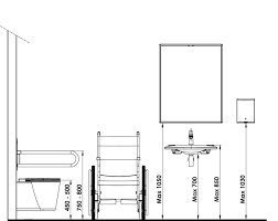
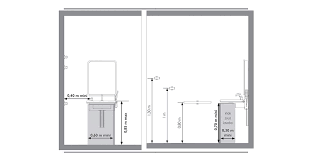
La salle de bain doit offrir un espace libre de minimum 1.50 m de diamètre en dehors du battement de la porte et des équipements fixes, afin de permettre la rotation d'un fauteuil roulant. Monuniverspmr.com permet d'acheter des produits de qualité aux meilleurs prix. Équiper une salle de bains ou des toilettes pour une personne à mobilité réduite (pmr) implique de choisir des équipements de qualité offrant une grande sécurité pour l'utilisateur. Normes salle de bain pmr : Il est donc essentiel qu'elle puisse utiliser l'ensemble des installations présentes dans la salle de bains de façon autonome : Le prix des équipements pour salle de bain pmr peut atteindre les 10 000 € selon les installations à faire. Agencement technique voir toutes les fiches conseils))) a bien été ajouté à votre demande de devis. Vous souhaitez rendre accessible votre salle de bain pmr aux personnes à mobilité réduite ? Les zones de transfert dans une salle de bains pour handicapés régler la hauteur des équipements de salle de bains pour les pmr & handicapées installation d'un wc suspendu long pmr : Sécurité et dimensions les éléments et équipements de la salle de bain doivent permettre la rotation ou espace de manœuvre d'un fauteuil roulant. Pour aménager une salle de bains pmr il est important de respecter certaines règles pour faire de cette pièce un lieu adapté à tous : Salle de bain pmr : Odf vous présente ses équipements sanitaires pour améliorer le confort et la sécurité des personnes à mobilité réduite (pmr) dans leur salle de bains :

Innov&eau est la solution clé en mains. Les différents équipements d'une salle de bains pmr. Pour la pose d'une baignoire pmr, par exemple, il faut compter entre 3000 et 8000 € (fourniture incluse). Les équipements d'une salle de bains adaptés pour pmr une personne handicapée moteur doit pouvoir faire sa toilette seule et de manière sécurisée. Équiper une salle de bains ou des toilettes pour une personne à mobilité réduite (pmr) implique de choisir des équipements de qualité offrant une grande sécurité pour l'utilisateur.

Normes D Accessibilite Pmr Salle De Bain
Normes D Accessibilite Pmr Salle De Bain from cdn.store-factory.com
Odf vous présente ses équipements sanitaires pour améliorer le confort et la sécurité des personnes à mobilité réduite (pmr) dans leur salle de bains : Faites rayonner votre salle de bain ! La largeur de la porte de communication soit de 90 cm au minimum pour faciliter l'accès à la salle de bains. Pour des raisons de confort et de sécurité, une personne handicapée ou à mobilité réduite nécessite des aménagements spécifiques dans la salle de bain. Spécialiste de la vente de matériel pmr et de la transformation d'espaces dédiés aux normes pmr, notre entreprise assure l'installation d'équipements dédiés à l'accessibilité des personnes à mobilité réduite et aux séniors. Le choix de tous les équipements destinés à une salle de bain pour personne handicapée doit prendre en compte le handicap de la personne, et mettre en exergue sa sécurité. Sécurité et dimensions les éléments et équipements de la salle de bain doivent permettre la rotation ou espace de manœuvre d'un fauteuil roulant. Pellet asc est un fabricant français spécialisé dans les équipements pmr pour la.

Pour les seniors, les personnes en perte d'autonomie et les personnes.

Découvrez notre gamme d'équipements pour salle de bain pmr!. Nous vous proposons un large choix de produits de fabricants certifiés pour un investissement durable dans le temps. Les équipements d'une salle de bains adaptés pour pmr une personne handicapée moteur doit pouvoir faire sa toilette seule et de manière sécurisée. Équiper une salle de bains ou des toilettes pour une personne à mobilité réduite (pmr) implique de choisir des équipements de qualité offrant une grande sécurité pour l'utilisateur. Pellet asc est un fabricant français spécialisé dans les équipements pmr pour la. Ils s'intègrent parfaitement à votre intérieur. Vous souhaitez rendre accessible votre salle de bain pmr aux personnes à mobilité réduite ? Poser un lavabo pour pmr Il est donc bien étudié et ne peut être fait au hasard. La salle de bain est un endroit hautement à risque pour les personnes à mobilité réduite, il importe de bien sécuriser ce lieu. La salle de bain doit offrir un espace libre de minimum 1.50 m de diamètre en dehors du battement de la porte et des équipements fixes, afin de permettre la rotation d'un fauteuil roulant. Des équipements adaptés pour votre salle de bain complète. Odf vous présente ses équipements sanitaires pour améliorer le confort et la sécurité des personnes à mobilité réduite (pmr) dans leur salle de bains :

Découvrez notre gamme d'équipements pour salle de bain pmr!. Sécurité et dimensions les éléments et équipements de la salle de bain doivent permettre la rotation ou espace de manœuvre d'un fauteuil roulant. La loi prévoit l'obligation d'aménager vos espaces salles de bains de manière à les rendre accessibles aux personnes handicapées. Le choix de tous les équipements destinés à une salle de bain pour personne handicapée doit prendre en compte le handicap de la personne, et mettre en exergue sa sécurité. Spécialiste de la vente de matériel pmr et de la transformation d'espaces dédiés aux normes pmr, notre entreprise assure l'installation d'équipements dédiés à l'accessibilité des personnes à mobilité réduite et aux séniors.

Amenagement D Une Salle De Bain Pmr
Amenagement D Une Salle De Bain Pmr from www.travauxbricolage.fr
Pour la pose d'une baignoire pmr, par exemple, il faut compter entre 3000 et 8000 € (fourniture incluse). Découvrez notre gamme d'équipements pour salle de bain pmr!. Lavabo salle de bain ou vasque salle de bain, il s'agit d'un équipement salle de bain incontournable pour des raisons d'hygiène, mais esthétique également. Vous pourrez équiper vos toilettes pmr d'une barre d'appui permettant un accès plus simple aux personnes en fauteuil roulant. La salle de bain doit offrir un espace libre de minimum 1.50 m de diamètre en dehors du battement de la porte et des équipements fixes, afin de permettre la rotation d'un fauteuil roulant. Quelles sont les normes imposées pour la construction des salles de bains et wc prévues dans le cadre de la loi du 11 février 2005 (pour l'égalité des droits et des chances) qui rendent obligatoire l'accessibilité de tous les erp (etablissements recevant du public) à tous les handicaps, quels sont les équipements adéquats dit pmr ? Il est donc bien étudié et ne peut être fait au hasard. Normes salle de bain pmr :

Équiper une salle de bains ou des toilettes pour une personne à mobilité réduite (pmr) implique de choisir des équipements de qualité offrant une grande sécurité pour l'utilisateur.

Pour vous donner ainsi une idée du coût éventuel des travaux à effectuer. Les normes la norme pour un logement et une salle de bain adaptés aux personnes à mobilité réduite (pmr) est de laisser un espace de manœuvre de 1,50 m pour faciliter les déplacements en fauteuil roulant et en déambulateur. Monuniverspmr.com permet d'acheter des produits de qualité aux meilleurs prix. Si vous optez pour une baignoire, pensez à vous équiper d'un siège de bain ainsi que de barres d'appui pour aider les personnes à se relever aisément. Il est donc bien étudié et ne peut être fait au hasard. Pour la pose d'une baignoire pmr, par exemple, il faut compter entre 3000 et 8000 € (fourniture incluse). Nous vous proposons un large choix de produits de fabricants certifiés pour un investissement durable dans le temps. Découvrez les travaux réalisés par sweetdom pour rénover la salle de bains d'un couple senior selon les recommandations d'un ergothérapeute. Vous souhaitez rendre accessible votre salle de bain pmr aux personnes à mobilité réduite ? Bien évidemment, de tels travaux nécessitent un investissement considérable, que ce soit au niveau des équipements sanitaires ou de l'espace à agencer. Sécurité et dimensions les éléments et équipements de la salle de bain doivent permettre la rotation ou espace de manœuvre d'un fauteuil roulant. Faites rayonner votre salle de bain ! Ils s'intègrent parfaitement à votre intérieur.

Posting Komentar untuk "Équipement Pmr Salle De Bain / Accessibilite Pmr Pour Salle De Bains Les Normes A Respecter - Normes salle de bain pmr :"